
안녕하세요 :)
서울 서초구 방배, 노른자 땅에서 로또 청약 공고가 올라왔는데요.
바로 서초구 방배삼익아파트를 재건축한 '아크로리츠카운티' 입니다.
이 단지는 분양가 상한제가 적용되어 더욱더 큰 시세차익이 예상되는데요!
주변시세보다 최대 8억원 이상의 시세차익을 기대해볼 수 있어
2024년 하반기 마지막 로또청약에 많은 청약수요가 몰릴것으로 생각됩니다.
1주택자 추첨 물량이 있고, 더불어 실거주 의무가 없어서
자금여력이 되시는 분들은 청약 안할 이유가 없을 것 같은데요.
당첨확률 높이는 꿀팁과 필요자금 등 아크로리츠카운티 청약 총정리 해드리겠습니다.
[Content]
1.단지정보
2.입지
3.평면도
4.분양가 및 입주조건(1주택자 추첨물량, 자금계획 등)
5.시세
6.분양일정
![]()

1. 아크로리츠카운티 단지정보
1-1. 위치
아크로리츠카운티아파트(2027년10월예정)
서울특별시 서초구 효령로34길 79
1-2. 단지규모
지하5층~지상27층, 8개동
1-3. 총 세대수
총 707세대(일반분양 140세대)
1-4. 입주예정일
2027년 10월(예정)
2. 아크로리츠카운티 입지
![]()

2-1. 교통
교통은 사실 두말 말할것도 없이 좋은데요. 2호선 방배역을 도보로 7분이면 갈 수 있습니다.
게다가 방배역 초역세권 뿐만 아니라 주변에 다양한 노선을 끼고 있는데요.
![]()

2호선, 3호선, 4호선, 7호선, 신분당선까지 최대 20분이면
이 5개의 황금노선을 모두 이용할 수 있습니다.
2-2. 학군
학군은 강남 8학군으로(상문고, 서울고, 서울여고) 전국 최고의 대치 학원가가
가까이에 위치하고 있는 교육환경까지도 우수한 곳인데요.

![]()
초등학교는 방일초 진학으로 1km 반경안에 있는데
다소 거리가 있기 때문에 어린 자녀를 두신 분들은 부모님 혹은 통학 도우미가 필요할 것 같네요!
서초중학교와 상문고등학교가 인접해 있어 강남 8학군을 누릴 수 있습니다.
게다가 대치동 학원가는 전국에서 오고 싶어 하는곳인데 이 대치동 학원가가 인접해 있어
자녀의 교육을 우선으로 하시는 분들께도 굉장히 매력적인 위치입니다.
또한 주변에 국립 중앙 도서관, 예술의전당, 국립국악원등이 가까이 있어
학업뿐만 아니라 문화생활을 즐기기에도 좋은 위치에 있습니다.
3.아크로리츠카운티 평면도
📌 44㎡ (18평형) 복도식 방2화1
![]()

📌 59㎡ (24평형) 계단식 방3화2/4BAY
![]()

📌 75㎡A (30평형) 계단식 방3화2/4BAY
![]()

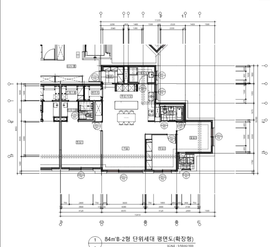
📌 84㎡ (34평형) 계단식 방3화2/4BAY
![]()

모든 평형대가 4BAY로 구조가 아주 좋은것 같네요!
4. 아크로리츠카운티 분양가 및 입주조건

44타입 14억 370
59타입 16억 7,630
75A 20억 6,600
75B 20억 2,430
84D 21억 7,120
144 타입 38억 4,170
특히 이번 일반공급에는 59타입의 세대수를 가장 많이 공급하는데요.
59타입이 실거주를 하기에도 좋고, 실거주 의무가 없으니 투자적으로 접근하기에도 괜찮을 것 같은데요!

분양가 상한제 적용단지로 재당첨제한 10년, 전매제한 3년이 있지만
실거주 의무기간이 없기때문에 청약에 당첨되면 당장 입주하지 않고 전세를 줄 수도 있습니다.

그리고 계약금의 20%를 계약체결일인 12/29~12/31일까지 납부하셔야 합니다.
44타입 약 2.5억원~2.8억원
59타입 약 3억원~3.4억원
75타입 약 4억원~4.15억원
84타입 약 4.15억원~4.35억원
144 타입 약 7.5억원~7.7억원
계약금의 20%는 이 정도의 자금이 필요하고, 중도금 대출은 이자후불제가 아닌, 회차별로 납부하는 방식입니다.
규제지역이기때문에 LTV 50% / DSR 40%가 적용되어 자금 계획을 잘 세우셔야 할것 같습니다.

일반분양 140세대 물량중, 특별공급이 69세대/일반공급이 71세대입니다.
1순위 자격조건 중 1주택자도 추첨제로 청약이 가능하기 때문에 지원해볼 수 있는데요.
1주택자도 가능한 추첨물량은 44타입 1명, 59타입 5명입니다.
이 외 다른 면적인 59이상은 1주택자 추천물량이 없습니다.
5.아크로리츠카운티 시세

주변시세를 함께 살펴보면, 아크로리츠카운티 바로 옆단지 21년식 신축인 방배그랑자이의 시세가
59기준 매매 최저가 23억, 84기준 매매 최저가 29.5억정도를 형성하고 있고,
전세시세는 59기준 12억, 84기준 15억대를 형성하고 있는데요.
아크로리츠카운티의 59타입 분양가가 16.7억/84타입 분양가가 21.7억이니
안전마진이 최소 6억이상, 많게는 8억까지도 있다고 볼 수 있습니다.
만약 실거주하지 않고 전세세팅을 한다고 생각했을때, 59는 현재 분양가-전세시세=5억정도의 자금
84는 약 7억정도의 자금이 있다면 강남/서초 한복판에 신축아파트를 가질 수 있게 됩니다.
27년 입주시기에 전세가가 어떻게 될지는 예측할 수는 없지만
27년도쯤엔 서울에 공급이 매우 부족하다는 측면에서
이 정도 입지의 신축아파트 전세가가 현 수준에서 많이 떨어질것 같다는 생각이 들지는 않는데요.
여러분의 생각은 어떠신가요??
6. 아크로리츠카운티 청약일정

📌특별공급 12/9(월)
📌일반공급 12/10(화)
📌당첨자발표 12/18(수)
📌계약일 12/29(일)
이상으로 방배 아크로리츠카운티 청약에 대해서 알아보았습니다.
더 궁금하신 점은 첨부해둔 입주자 모집공고문을 참고해주세요!
모델하우스는 사전 온라인 방문예약제를 통해
12/6(금)~12/8(일)까지 3일간 운영할 계획이라고 합니다.
오랜만에 강남에 로또청약이 나와 경쟁이 아주 치열할것으로 예상됩니다.
이 글을 읽어주시는 모든분들께 행운이 있으시길 바랍니다💚
감사합니다.

#아크로리츠카운티#아크로리츠카운티분양가
#아크로리츠카운티일반분양#아크로리츠카운티1주택자
#아크로리츠카운티분양#아크로리츠카운티모델하우스
#아크로리츠카운티청약#아크로리츠카운티추첨
#아크로리츠카운티커뮤니티#서초구아크로리츠카운티
#아크로리츠카운티분양일정
다른 분들이 함께 본 인기🏅칼럼