잠실래미안아이파크
10월 분양예정
청약총정리
![]()

안녕하세요
주유밈입니다 ^__^
추석 이후
'청담르엘'과
드디어!!
잠실래미안
아이파크
청약이 시작됩니다!!
![]()
#잠실래미안아이파크 #잠실래미안아이파크분양가 #잠실래미안아이파크평면도 #잠실래미안분양시기 #진주아파트재건축 #잠실진주 #잠실진주아파트재건축 #잠실래미안아이파크분양 #잠실래미안아이파크일반분양 #잠실래미안아이파크모델하우스 #잠래아
잠실 래미안아이파크
(구, 진주아파트)
위치
서울특별시 송파구 올림픽로 399 진주아파트
잠실래미안아이파크(2025년06월예정)
서울특별시 송파구 올림픽로 399 진주아파트
🏠규모
총 23개동
지하 4층 ~ 지상 최고 35층
🏠세대수
총 2678세대
일반분양 물량 578세대
-전용43m2: 123세대
-전용59m2: 49세대
-전용84m2: 406세대
🏠시공사
삼성물산, HDC현대산업개발 컨소시엄
🏠 입주일
2025년 12월
🏠입지
![]()

잠실이라는
입지는
두말하면 잔소리 인 것 같습니다.
✅교통
2호선 잠실나루역
8호선 몽촌토성역
9호선 한성백제역
✅학군

서울잠실초
(학급당 학생 수 21명
총 학생 수 920명)
1학년 125명 -> 6학년 157명
신천중학교
(특목고 11명/ 자사고81명)
잠실중학교
(특목고 9명/ 자사고64명)
🏠 단지배치도
![]()

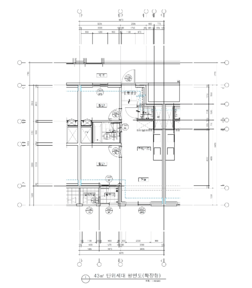
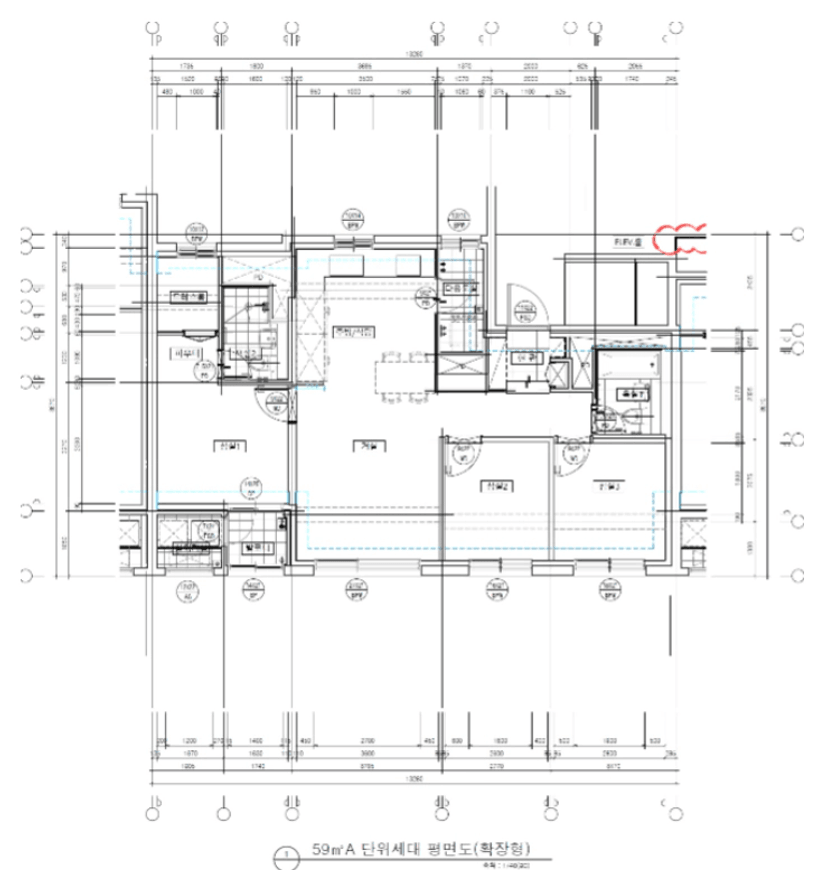
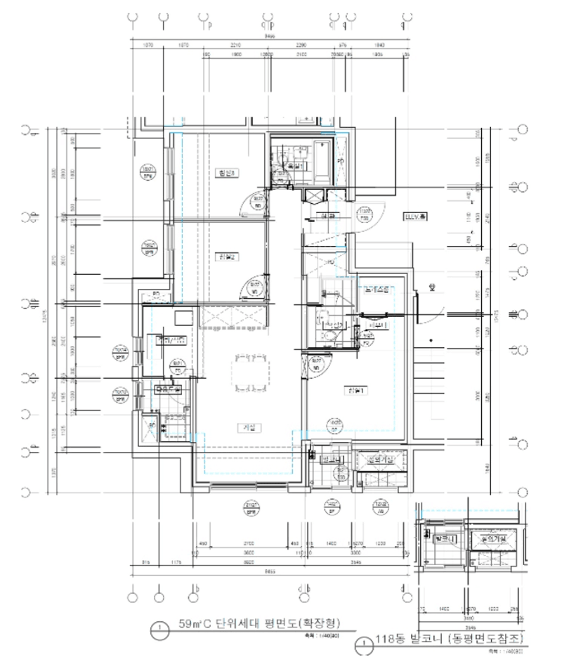
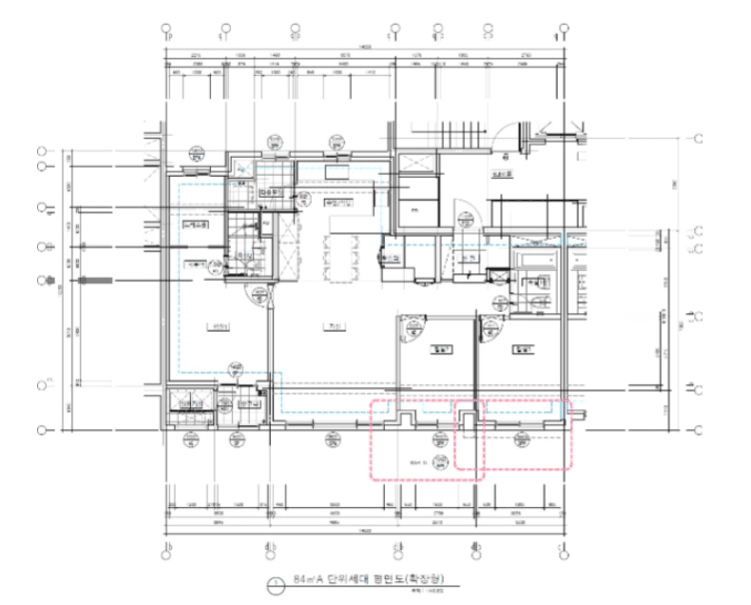
🏠평면도
43㎡타입 (123세대)

59A㎡타입 (판상형)

59C㎡타입 (타워형)
![]()

84A㎡타입 (판상형)

84C㎡타입 (타워형)

🏠잠실래미안아이파크 분양가
최근 9.8일 기사에 따르면
5409만원
전용 84 18억대
전용 59 13.5억대
🏠시세차익




주변 굵직굵직한 단지들에 비해
이렇게나 싸다니....
적어도
5억이상의 시세차익이
날 것으로 예상 됩니다.
🏠청약 팁
✅비선호인 낀 평수, 타워형
✅ 59㎡ 추첨제 60%
84㎡ 추첨제 30%
이 중
59㎡ 를 노려보는게
확률이 높아보입니다!
🏠분양 일정
![]()

10월 분양 예정으로
오늘 기사가 나왔습니다!
🏠모델하우스
24.09.12일
고객센터
전화드려보니
아직
분양예정 10월만
말씀주시고
모델하우스 위치 및 오픈일정은
알려주시기 어렵다고 하시네요.
이 내용
제가 체크해서
업데이트되면
바로 올리겠습니다!
이상
잠실래미안 아이파크
분양가부터 일정
등을 알아보았습니다.
소식이 업데이트되면
바로 소식 전해드리겠습니다.

#잠실래미안아이파크 #잠실래미안아이파크분양가 #잠실래미안아이파크평면도 #잠실래미안분양시기 #진주아파트재건축 #잠실진주 #잠실진주아파트재건축 #잠실래미안아이파크분양 #잠실래미안아이파크일반분양 #잠실래미안아이파크모델하우스 #잠래아
<이 글은 꼭 보셔야 합니다! 월부 BEST 글>
현금 2-3억 있다면 여기로 가세요.
제2의 마포가 될 겁니다. (+인기 아파트 가격 정리본 제공⭐️)
▼아파트 리스트 바로 공개▼
https://link.weolbu.com/3SCPTSN
------------------------
월급쟁이부자들은 월급쟁이들의 내집마련과 행복한 노후를 돕습니다.
원하는 목표 꼭 이룰 수 있도록 월부가 함께 하겠습니다.
다른 분들이 함께 본 인기🏅칼럼