정보나눔방

잠실 래미안 아이파크 청약 모델하우스 총정리 (+ 일정, 분양가, 평면도, 청약팁)

24.09.12



 

잠실래미안아이파크

10월 분양예정

청약총정리

 

 

 

안녕하세요

주유밈입니다 ^__^

 

 

추석 이후

'청담르엘'과

 

 

드디어!!

잠실래미안

아이파크

 

 

 

청약이 시작됩니다!!

 

 

 

 

 

 

#잠실래미안아이파크 #잠실래미안아이파크분양가 #잠실래미안아이파크평면도 #잠실래미안분양시기 #진주아파트재건축 #잠실진주 #잠실진주아파트재건축 #잠실래미안아이파크분양 #잠실래미안아이파크일반분양 #잠실래미안아이파크모델하우스 #잠래아

 


 

 

잠실 래미안아이파크

(구, 진주아파트)

 

 

위치

 

 

서울특별시 송파구 올림픽로 399 진주아파트

 

 

잠실래미안아이파크(2025년06월예정)

서울특별시 송파구 올림픽로 399 진주아파트

 

 

🏠규모

총 23개동

지하 4층 ~ 지상 최고 35층

 

 

 

🏠세대수

총 2678세대

 

일반분양 물량 578세대

 

-전용43m2: 123세대

 

-전용59m2: 49세대

 

-전용84m2: 406세대

 

 

🏠시공사

삼성물산, HDC현대산업개발 컨소시엄

 

 

 

🏠 입주일

2025년 12월

 

 

 

 

 


🏠입지

 

 

잠실이라는

입지는

두말하면 잔소리 인 것 같습니다.

 

 

 

✅교통

 

2호선 잠실나루역

8호선 몽촌토성역

9호선 한성백제역

 

 

 

 

✅학군

 

 

 

서울잠실초

(학급당 학생 수 21명

총 학생 수 920명)

 

1학년 125명 -> 6학년 157명

 

 

 

 

 

신천중학교

(특목고 11명/ 자사고81명)

 

잠실중학교

(특목고 9명/ 자사고64명)

 

 

 

 

 

 

 

 


🏠 단지배치도

 

 

 

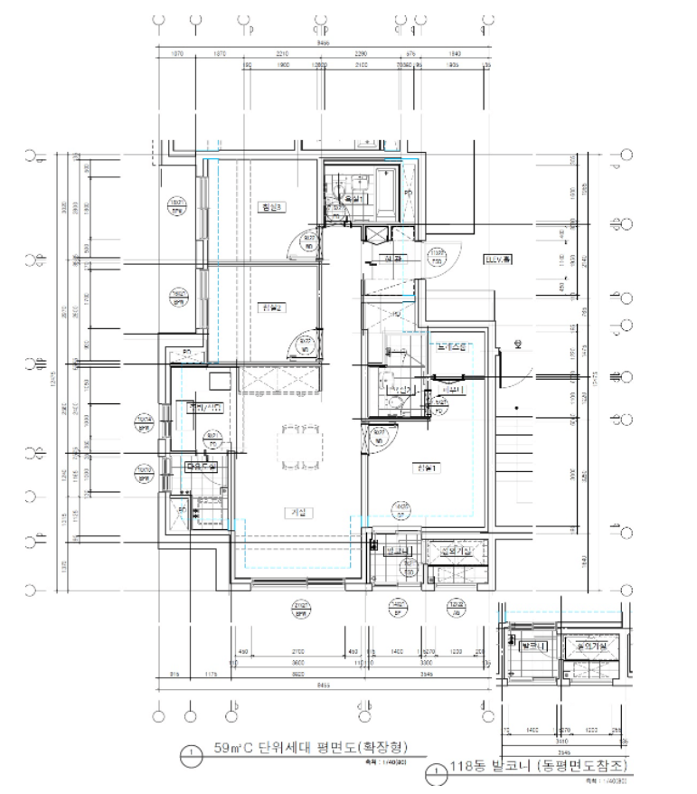
🏠평면도

 

43㎡타입 (123세대)

 

 

 

 

59A㎡타입 (판상형)

 

 

 

59C㎡타입 (타워형)

 

 

 

84A㎡타입 (판상형)

 

84C㎡타입 (타워형)

 

 

 

 

 

🏠잠실래미안아이파크 분양가

 

 

최근 9.8일 기사에 따르면

 

5409만원

 

전용 84 18억대

전용 59 13.5억대

 

 

🏠시세차익

 

 

 

 

 

 

 

 

주변 굵직굵직한 단지들에 비해

이렇게나 싸다니....

 

 

적어도

5억이상의 시세차익이

날 것으로 예상 됩니다.

 

 

 

 

 

 

🏠청약 팁

 

✅비선호인 낀 평수, 타워형

 

 

✅ 59㎡ 추첨제 60%

84㎡ 추첨제 30%

 

이 중

59㎡ 를 노려보는게

확률이 높아보입니다!

 

 

 

 

🏠분양 일정

 

10월 분양 예정으로

오늘 기사가 나왔습니다!

 

 

 



🏠모델하우스

 

 

24.09.12일

고객센터

전화드려보니

아직

 

분양예정 10월만

말씀주시고

모델하우스 위치 및 오픈일정은

알려주시기 어렵다고 하시네요.

 

이 내용

제가 체크해서

업데이트되면

바로 올리겠습니다!

 



 

 

 

이상

잠실래미안 아이파크

분양가부터 일정

등을 알아보았습니다.

 

 

소식이 업데이트되면

바로 소식 전해드리겠습니다.

 

 

 

 

#잠실래미안아이파크 #잠실래미안아이파크분양가 #잠실래미안아이파크평면도 #잠실래미안분양시기 #진주아파트재건축 #잠실진주 #잠실진주아파트재건축 #잠실래미안아이파크분양 #잠실래미안아이파크일반분양 #잠실래미안아이파크모델하우스 #잠래아

 

 

<이 글은 꼭 보셔야 합니다! 월부 BEST 글>

 

현금 2-3억 있다면 여기로 가세요.

제2의 마포가 될 겁니다. (+인기 아파트 가격 정리본 제공⭐️)

 

▼아파트 리스트 바로 공개▼

https://link.weolbu.com/3SCPTSN

 

------------------------

 

월급쟁이부자들은 월급쟁이들의 내집마련과 행복한 노후를 돕습니다.

원하는 목표 꼭 이룰 수 있도록 월부가 함께 하겠습니다.




댓글


마그온
24.09.12 10:09

잠래아 많이 올라 갔더라구요 ~! 너무 기대되요 :)

허씨허씨creator badge
24.09.12 10:10

잠래아 완전 기대됩니다!!!

제제23
24.09.12 10:12

대박 ... 여기 궁금햇는데 소식 감사합니다 !!