e편한세상 당산 리버파크 청약 총정리
( + 분양가, 일정, 평면도, 모델하우스)

[작성일 : 2024. 11. 13]
안녕하세요
주유밈 입니다 :)
서울 한복판
그것도 금싸라기 땅
당산에
유원제일아파트의 재건축으로
'e편한세상
당산리버파크'
분양 예정입니다.
분양가, 시세차익
일정, 조건, 모델하우스
자세히 알아보겠습니다.

#e편한세상당산리버파크 #e편한세상당산리버파크분양가 #e편한세상당산리버파크청약 #e편한세상당산리버파크일정 #e편한세상당산리버파크모델하우스 #e편한세상당산리버파크청약 #e편한세상당산리버파크평면도 #e편한세상당산리버파크입지 #e편한세상당산리버파크시세차익 #e편한세상당산리버파크특별공급 #e편한세상당산리버파크1순위 #e편한세상당산리버파크견복주택 #e편한세상당산리버파크시세
e편한세상
당산리버파크
e편한세상당산리버파크(2028년02월예정)
서울특별시 영등포구 국회대로29길 13 유원제일아파트

🏠규모&세대수
전용 44~84㎡
총 550세대
🏠시공사
대림건설(주)
🏠 입주일
2028년 2월(입주예정)
🏠입지
![]()

✅교통
![]()

강남역까지 40분
여의도 코닿을거리와
시청까지 엄청 가까운...
말도 안되는 교통입니다.
✅학군

당서초
(학급당 학생 수24.3명)
여의도중학교
(학업성취도 89.8%)
관악고등학교
✅편의시설

이대병원 1.1km
한림대병원 1.4km
코스트코 양평점
롯데마트
홈플러스
없는것 뺴고 다 있는 곳입니다.
🏠단지배치도
![]()

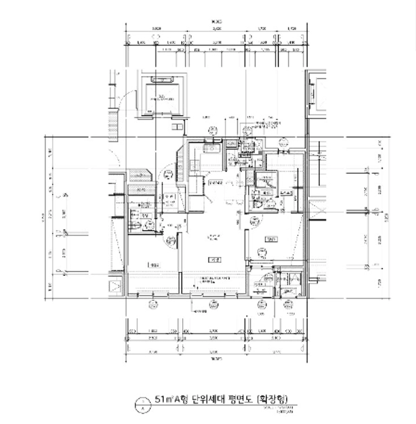
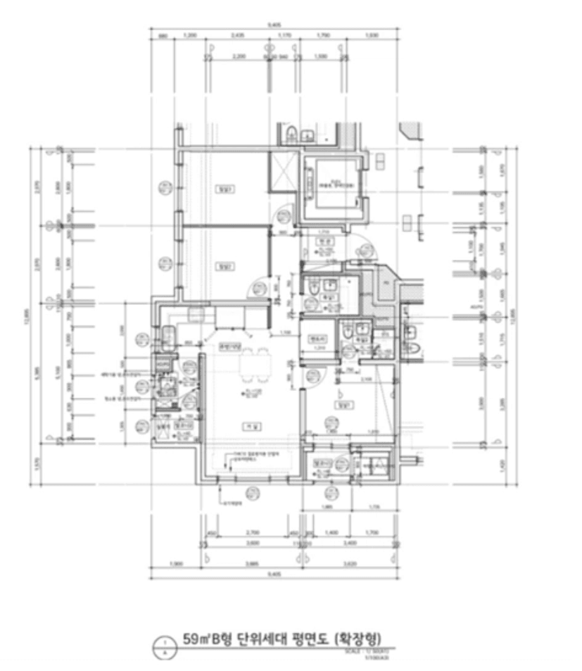
🏠평면도

51A㎡타입 (56세대)

59A㎡타입 (1세대)

59B㎡타입 (11세대)
🏠e편한세상
당산리버파크 분양가

51타입 10.7억
59타입 14~14.5억
.
51타입은 매력적이고
59타입은 합리적인 가격에 나온 것 같습니다
🏠시세차익


당산센트럴아이파크 59 15.5억

아크로타임스퀘어 59 14.6억
안전마전 1억정도
시세차익이 예상됩니다.
🏠청약 체크포인트
✅ 11/14 모집공고문
업데이트 예정
🏠분양 일정
입주자모집공고일
11/14 (목)
특별공급 접수일
11/25 (월)
🏠모델하우스
사이버 주택전시관으로 오픈예정
견본주택은 없다고하니
이점 참고해주세용!!
자세한 사항은 모집공고문
확인해주시길 바라겠습니다!
긴 글 읽어주셔서 감사합니다.
https://weolbu.com/product?displaySeq=3731&inviteCode=BC0EC4

#e편한세상당산리버파크 #e편한세상당산리버파크분양가 #e편한세상당산리버파크청약 #e편한세상당산리버파크일정 #e편한세상당산리버파크모델하우스 #e편한세상당산리버파크청약 #e편한세상당산리버파크평면도 #e편한세상당산리버파크입지 #e편한세상당산리버파크시세차익 #e편한세상당산리버파크특별공급 #e편한세상당산리버파크1순위 #e편한세상당산리버파크견복주택 #e편한세상당산리버파크시세
2024000679 e편한세상 당산 리버파크 입주자모집공고문.pdf
다른 분들이 함께 본 인기🏅칼럼