
작성일: 2024. 10. 08.
안녕하세요!
함께하는가치입니다 :)

오늘은 10월 분양을 앞둔
잠실래미안아이파크 청약정보 가지고 왔습니다!
송파구의 최고 노른자땅,
잠실권역에서 거의 15년만의 분양이라서
하반기 기대되는 분양단지 중 하나인데요!!
잠실 일대에 신규공급이 없었던만큼
대기수요도 많을것으로 예상이 되는데요..!!
입지, 평면도, 예상분양가등
자세히 알려드리겠습니다!!
#잠실래미안아이파크
#잠실래미안아이파크분양임박
#잠실래미안아이파크입지
#잠실래미안아이파크분양가
#잠실래미안아이파크청약
#잠실래미안아이파크청약일정
#잠실래미안아이파크모델하우스
#잠실래미안아이파크평면도
#잠실래미안아이파크실거주
#잠실래미안아이파크예상분양가
#잠실래미안아이파크전세
#잠실래미안아이파크실거주
#잠실래미안아이파크자금
#잠실래미안아이파크시세차익
잠실 래미안 아이파크
단지정보

위치
잠실래미안아이파크(2025년06월예정)
서울특별시 송파구 올림픽로 399 진주아파트
단지규모
지하4층 ~ 지상 최고 35층 총 23개동
세대수
2,678세대
(일반분양 589세대)
일반공급세대
▶43㎡(114가구)
▶59㎡(118가구)
▶74㎡(35가구)
▶84㎡(297가구)
▶104㎡(25가구)
잠실 래미안 아이파크
입지

✅교통✅



몽촌토성역 및 8호선, 2호선, 9호선
트리플 역세권에 있는 잠실 래미안 아이파크는
강남역까지 25분,
시청역까지도 43분밖에 안걸리는
너무 좋은 위치인데요..!
2호선이라는 황금노선을 가지고 있는
잠실 래미안 아이파트 탐나네요..

✅학군✅


단지 바로 앞에
잠실초등학교가 있어서
작은길 하나만 건너면 되기 때문에
어린아이를 키우시는
부모님들도 안심하고
학교 보내실 수 있겠어요~~

신천중, 잠실중, 잠신
잠실고, 잠신고, 방산고 등
주변에 중학교, 고등학교 등이
가까이에 많이 있는데요.
원래 잠실은 학군 인프라가 좋은만큼
인프라를 함께 누릴 수 있는 단지입니다.
✅환경✅

잠실롯데백화점, 월드타워,
롯데마트, 홈플러스 등
다양한 생활 편의시설이 밀집해 있고
석촌호수공원, 잠실한강공원,
올림픽공원 등
너무 좋은 자연환경과도 가까이 맞닿아있습니다.
쾌적한 주거환경과
우수한 교육환경
편리한 생활인프라를 모두 가지고 있는
잠실 래미안 아이파크 입니다❤️

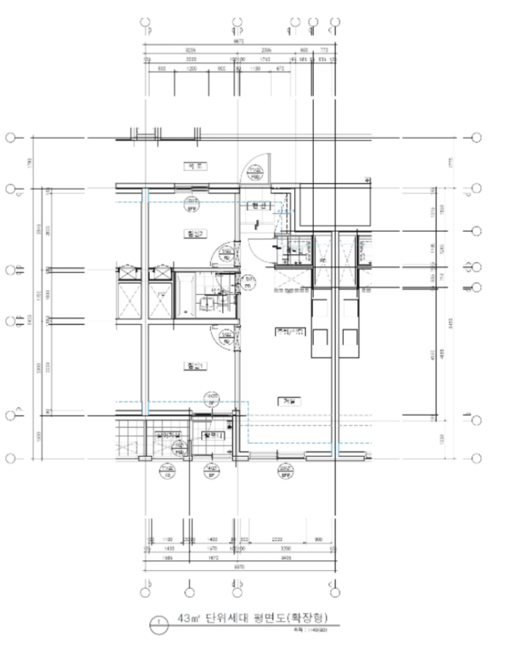
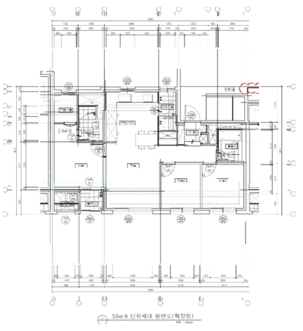
잠실 래미안 아이파크
평면도
전용 43 (방2화1)

전용 59 A(판상형), C(타워형)
![]()

전용 84 A(판상형), C(타워형)

59, 84 판상형은 4Bay로
구조가 좋은것 같아요!
초소형면적에 해당한는 43은
대부분 복도식구조로 추정이 되며
과반수 이상이 임대로 공급될 예정입니다.
잠실 래미안 아이파크
예상분양가
📌평당가(3.3㎡당) 약 5,409만
📌59: 약 13억 5천만원
📌84: 약 18억 4천만원

![]()
주변시세를 한번 살펴보면
잠실의 대표 단지들인 엘리트는
전용 59 기준 21~22억원 사이로
거래가 되고 있습니다.
그리고 잠실권역에 포함되지는 않지만
신축 대단지인 헬리오시티는
전용 59기준 18~19억 사이로
거래가 되고 있는데요.
잠실 래미안 아이파크의
바로 옆에 붙어있는 파크리오 단지도
08년식으로 연식이 16년 이나
차이나게 되는데 시세가 20억원 정도인데요.
전용 59기준 최소 안전마진
5억이상
일것으로 예상됩니다.
잠실 래미안 아이파크
청약조건
📌서울특별시 2년이상 거주자 우선
📌1주택자도 청약가능
(2주택 이상 소유, 청약불가)
📌분양가상한제 적용주택으로
전매제한기간 3년
거주의무기간 2년
전매제한 및 거주의무기간이 있기 때문에
투자목적으로
청약을 하기는 어려울것 같습니다.
잠실 래미안 아이파크
모델하우스 위치
래미안갤러리
서울특별시 송파구 충민로 17 래미안갤러리
10월 중 모델하우스 개관 예정
📌10월 분양임박
자세한 모집공고문이 나오면
다시 안내해드리겠습니다!
감사합니다.

[추천강의]
청약도 운이 아니다
청약 성공적 당첨을 위한 전략을 알고싶다면
아래 강의를 추천드립니다!

#잠실래미안아이파크
#잠실래미안아이파크분양임박
#잠실래미안아이파크입지
#잠실래미안아이파크분양가
#잠실래미안아이파크청약
#잠실래미안아이파크청약일정
#잠실래미안아이파크모델하우스
#잠실래미안아이파크평면도
#잠실래미안아이파크실거주
#잠실래미안아이파크예상분양가
#잠실래미안아이파크전세
#잠실래미안아이파크실거주
#잠실래미안아이파크자금
#잠실래미안아이파크시세차익
다른 분들이 함께 본 인기🏅칼럼