
(작성일 : 2024.08.22)
#청담르엘일반분양 #청담르엘분양가 #청담르엘평면도 #청담르엘분양
#청담르엘청약 #청담르엘입주 #청담르엘모델하우스 #청담르엘분양
#청담르엘청약 #청담르엘분양일정 #청담르엘실거주 #청담르엘추첨
#잠실르엘 #청담자이 #잠실르엘분양가 #청담삼익
#청담삼익아파트 #롯데르엘 #청담동르엘 #청담르엘
#청담르엘분양가 #청담르엘분양일정 #청담르엘평면도 #청담르엘아파트
#청담르엘입주 #청담르엘모델하우스 #청담르엘청약일정 #청담르엘청약 조건
#청담르엘분양공고 #청담르엘커뮤니티 #청담르엘분담금 #청담르엘입주시기
#청담르엘조감도 #청담르엘배치도 #청담르엘공사중단 #청담르엘분양권
#청담르엘입주시기 #청담르엘입주권 #청담르엘준공
안녕하세요:)
드림텔러입니다.
오늘은 분상제 단지인
청담르엘
분양 소식을 가져왔습니다.
분양가, 일정, 평면도 등
자세히 알아보겠습니다.
위치
강남구 학동로 609
청담르엘(2025년11월예정)
서울특별시 강남구 학동로 609 청담 삼익아파트
규모

총 1,261 세대
(일반분양 149세대)
입주 예정
2025년 9월
입지

교통

청담역 도보 5분
강남역 30분 이내
위치가 깡패네요.
학군

봉은초, 봉은중, 경기고
중학교 학업성취도가
엄청 나네요.
강남 8학군 중 1개인
경기고가 인접해 있습니다.
환경

주변에 백화점이 무려 3개나 있네요.
그리고 부자들이 좋아한다는
한강뷰!!

#청담르엘일반분양 #청담르엘분양가 #청담르엘평면도 #청담르엘분양
#청담르엘청약 #청담르엘입주 #청담르엘모델하우스 #청담르엘분양
#청담르엘청약 #청담르엘분양일정 #청담르엘실거주 #청담르엘추첨
#잠실르엘 #청담자이 #잠실르엘분양가 #청담삼익
#청담삼익아파트 #롯데르엘 #청담동르엘 #청담르엘
#청담르엘분양가 #청담르엘분양일정 #청담르엘평면도 #청담르엘아파트
#청담르엘입주 #청담르엘모델하우스 #청담르엘청약일정 #청담르엘청약 조건
#청담르엘분양공고 #청담르엘커뮤니티 #청담르엘분담금 #청담르엘입주시기
#청담르엘조감도 #청담르엘배치도 #청담르엘공사중단 #청담르엘분양권
#청담르엘입주시기 #청담르엘입주권 #청담르엘준공
단지배치도

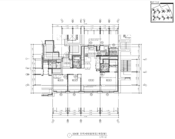
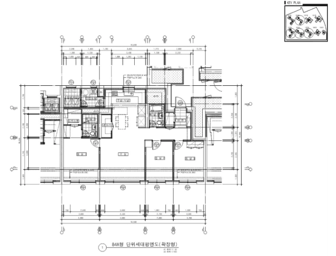
평면도
59타입

84타입

예상 분양가
분양가상한제 단지 청담르엘
예상분양가는
59타입
17 억
84타입
24 억

바로 옆에 있는
2011년 입주한 청담자이 가격을 볼까요?

전용 82
매매 호가 34억
실제로 최근에 33억에 가까운 가격에
거래가 되었습니다.
한강이 보이는 청담동에 신축!!
당첨만 되면 10억에 가까운
시세차익을 노려볼 수 있지 않을까 생각합니다.
분양 일정이 자세히 나오는대로
다시 찾아오겠습니다.
오늘도 읽어주셔서 감사합니다.
행복한 하루 되세요.
다른 분들이 함께 본 인기🏅칼럼